
Casa Asensio
Arquitectura pensada desde el entorno
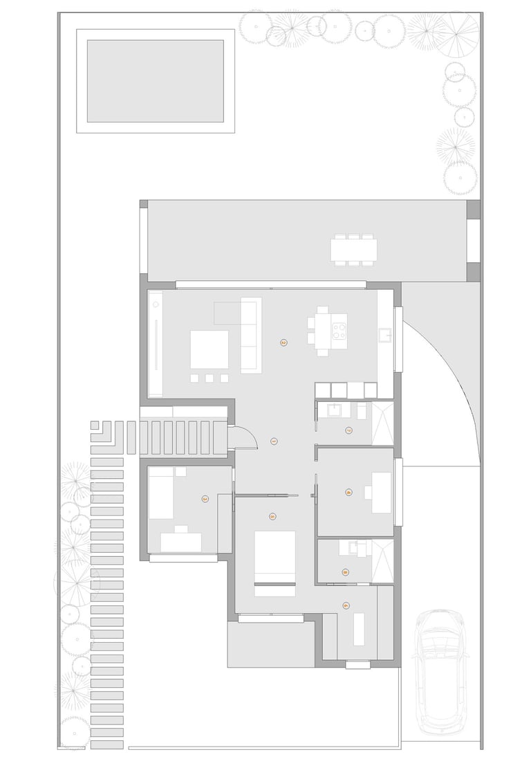
El diseño se adapta cuidadosamente a la geometría de la parcela y a sus vistas privilegiadas. La vivienda, desarrollada en una sola planta y con edificabilidad reducida, se orienta estratégicamente hacia el oeste para enmarcar el paisaje de naranjos y capturar la belleza de los atardeceres desde un porche volado de más de 12 metros, sin pilares intermedios.




La luz natural articula los espacios interiores: los dormitorios reciben el sol del amanecer, los baños se iluminan cenitalmente con huecos profundos que proyectan sombras cambiantes, y un patio central con luz difusa baña el corazón de la vivienda desde una losa de hormigón que parece flotar sobre cristales perimetrales.
El recibidor de la casa se concibió como un patio cubierto, cuya tapa parece levitar sobre sus blancas paredes y deja penetrar la luz del cielo siempre en su interior. Una alegoría a la charnela de los sueños que evocaba Sigmund Freud en sus teorías, aquella fina línea que separa la vida real de la vida de los sueños.
Un sueño materializado en esta casa cuyos espacios están íntimamente relacionados y optimizados al centímetro.


La luz como elemento compositivo


Hacer realidad lo que imaginamos
Fidelidad entre idea y realidad.
La coherencia entre el diseño proyectado y la obra construida es uno de nuestros mayores compromisos. En esta vivienda, la precisión en la ejecución permitió que la casa terminada reflejara con fidelidad los renders iniciales: desde la ligereza del porche volado hasta la atmósfera luminosa del patio central, cada detalle fue cuidadosamente llevado a la realidad, conservando la esencia y la intención arquitectónica del proyecto original.
.


El acceso desde el lindero sur permite una distribución funcional y sin recorridos innecesarios. El núcleo de la casa gira en torno a un patio central desde el cual se accede a todas las estancias, favoreciendo una circulación clara, sencilla y conectada con el exterior.


